Palaiseau
REF:
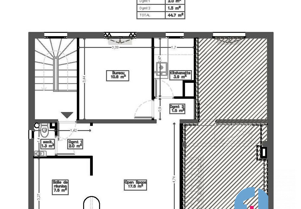
À 10 Min du RER station Palaiseau Villebon et à proximité des principaux axes routiers, dans une maison individuelle avec entrée indépendante à Palaiseau, EI Immobilier vous propose une surface de bureaux de 44,70 m², située au 1er étage avec un garage en Rdc de 26 m².
Le quartier, qui est pavillonnaire, assure un environnement de travail calme.
Honoraires de 3 744 € à la charge du locataire. Dépôt de garantie 3 900 €. Classe énergie D, Classe climat D. Les informations sur les risques auxquels ce bien est exposé sont disponibles sur le site Géorisques : georisques.gouv.fr.
Carte pro. CPI91012018000023979




